勝浦しんがしんが
専用庭付きの広い一軒家。海近集落で暮らすひとときを
5つの部屋と広い庭。
グループ泊がおすすめ
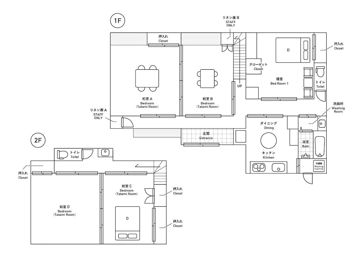
広い日本家屋をリフォームしたグループ向き民泊。寝室が5部屋に分かれているので、家族同士の他にも、同僚や友人同士のグループなどにも最適。「みんなで」と「プライベート」をきちんと分けて過ごせます。駐車場は3台分有り。1泊でも連泊でも清掃費は変わらないので、連泊すればするほどお得です。
お子様連れの
ワーケーションに最適
広い専用庭に設置された大きなトランポリンやハンモックが、子どもたちに大人気の「しんがしんが」。Wi-Fiが届くウッドデッキもあるので、遊ぶ子供たちのそばで仕事に打ち込むこともできます。屋内の4つの和室にも、背もたれ付きの座椅子と大きな机を用意しています。
施設紹介
緑に囲まれた階段をくだって、小川を渡る小さな橋の向こうに見えてくる「しんがしんが」。日本家屋を、グループの旅行者が快適に過ごせる様にリフォームした民泊です。いっぷう変わった名前は、所在地である「新官(しんかん)」の地名が由来だとか。風通しがよく、夏も涼やかに過ごせる立地で、ワーケーションの時間をゆったりと過ごすことができます。
ゆったりとした海街時間を満喫
少し歩けば小さな漁港があるので、パソコン作業やオンライン会議に疲れたら、休憩に海散歩なんていかがでしょう。早起きすれば、太平洋から昇る朝日を拝んだり、出航する漁船を見送ったりすることも。釣りスポットの堤防で、海釣りを楽しむこともできます。
●住所
〒299-5224 千葉県勝浦市新官409
●アクセス
(電車で)JR外房線勝浦駅から車で約5分
(車で)市原鶴舞ICから約40分
今すぐワーケーション施設をチェック!
営業時間
8:30~17:15(年末年始休業)
住所
〒299-5225
千葉県勝浦市墨名815-56
電話番号
0470-73-2500
メールアドレス
メールでのお問い合わせ後、返信が無い場合は、お電話にてお問い合わせください。
Copyrignt ⒸKatsuura City Tourism Association All Rignts Reserved